Description
Aquamarijnlaan 346 te Utrecht, EXCLUSIEF voor STARTERS, tegen een VASTE PRIJS van €470.000 k.k.
Een prachtig gerenoveerde maisonnette met balkon op het zuiden met een totale oppervlakte van 128m2 ontstaan vanuit een bedrijfspand. Het beschikt over 5 kamers, waarvan 3 slaapkamers verdeeld over twee verdiepingen en een maisonnette met een slaapkamer van maar liefst 23m2. Instapklaar en zeer luxe afgewerkt. Je hoeft alleen nog je spullen uit te pakken, meubels te plaatsen en je kunt genieten van de zomer! Wat wil je nog meer?
Dit appartement is zeer recent opgeleverd, voorzien van alle luxe die je mag verwachten van een nieuw appartment en nu beschikbaar EXCLUSIEF voor starters tegen een VASTE PRIJS VAN €470.000 k.k.!
De ligging is werkelijk ideaal in de wijk Tolsteeg. De woning ligt aan de rand van het gezellige winkelcentrum Smaragdplein dat is voorzien van alle winkels die je nodig hebt. Station Vaartsche Rijn is op een paar minuten lopen wat zorgt voor een uitstekende bereikbaarheid met het OV. Voor de deur stopt er elke 10 minuten een bus elke die je naar het centrum van Utrecht brengt. Tot slot ben je binnen 10 minuten fietsen zowel op Utrecht centraal als midden in het centrum van Utrecht.
Kortom: een royaal, bijzonder en zeer strak afgewerkt ‘industrieel’ appartement met een speelse indeling en energielabel A.
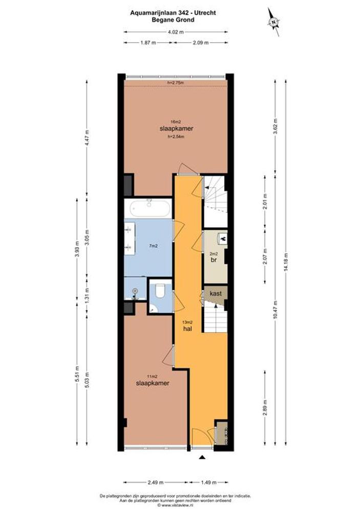
Begane grond:
Je komt binnen in de hal met eerst een ruime slaapkamer, daarna de luxe badkamer met bad, aparte douche en dubbele wastafel, een separaat modern toilet, een berging met CV combiketel en aansluiting voor wasmachine en droger. En als laatste een royale slaapkamer aan de achterzijde en kastruimte onder de trap.
Eerste verdieping:
Dit is een lichte open ruimte met een fraaie vloer met aan de achterzijde de woonkeuken met een modern keukenblok met apparatuur en aan de voorzijde de woonkamer met een fraaie industriële pui naar het balkon op het Zuiden.
Souterrain:
Als klap op de vuurpijl is er nog een heerlijk koele slaapkamer van maar liefst 23m2 in het souterrain met aansluitend nog een hobby/kasten kamer.
Bijzonderheden:
* Bouwjaar 2022, oorspronkelijk bouwjaar 1957 maar getransformeerd in dit jaar.
* Woonoppervlakte 128m2 en inhoud 427m3.
* Energielabel A.
* Alles is nieuw waaronder: de keuken, badkamer, toilet, elektra, cv-installatie, balkon met pui, stukwerk en het schilderwerk.
* Verkoper heeft appartement nooit bewoond, en de foto's zijn een impressie van een soortgelijke modelwoning.
* Notariskeuze is aan verkoper.
* De servicekosten bedragen circa € 179,35,- per maand, onder voorbehoud dat de splitsingsakte 100% definitief is gemaakt.
* Gevels zijn gezandstraald en het platte dak is voorzien van een fraai sedumdak.
* Voorbehoud onvoorwaardelijke toestemming verkoop.
* Voordeel overdrachtsbelasting voor verkoper.
* Eigen grond en oplevering in overleg.
Een prachtig gerenoveerde maisonnette met balkon op het zuiden met een totale oppervlakte van 128m2 ontstaan vanuit een bedrijfspand. Het beschikt over 5 kamers, waarvan 3 slaapkamers verdeeld over twee verdiepingen en een maisonnette met een slaapkamer van maar liefst 23m2. Instapklaar en zeer luxe afgewerkt. Je hoeft alleen nog je spullen uit te pakken, meubels te plaatsen en je kunt genieten van de zomer! Wat wil je nog meer?
Dit appartement is zeer recent opgeleverd, voorzien van alle luxe die je mag verwachten van een nieuw appartment en nu beschikbaar EXCLUSIEF voor starters tegen een VASTE PRIJS VAN €470.000 k.k.!
De ligging is werkelijk ideaal in de wijk Tolsteeg. De woning ligt aan de rand van het gezellige winkelcentrum Smaragdplein dat is voorzien van alle winkels die je nodig hebt. Station Vaartsche Rijn is op een paar minuten lopen wat zorgt voor een uitstekende bereikbaarheid met het OV. Voor de deur stopt er elke 10 minuten een bus elke die je naar het centrum van Utrecht brengt. Tot slot ben je binnen 10 minuten fietsen zowel op Utrecht centraal als midden in het centrum van Utrecht.
Kortom: een royaal, bijzonder en zeer strak afgewerkt ‘industrieel’ appartement met een speelse indeling en energielabel A.
Begane grond:
Je komt binnen in de hal met eerst een ruime slaapkamer, daarna de luxe badkamer met bad, aparte douche en dubbele wastafel, een separaat modern toilet, een berging met CV combiketel en aansluiting voor wasmachine en droger. En als laatste een royale slaapkamer aan de achterzijde en kastruimte onder de trap.
Eerste verdieping:
Dit is een lichte open ruimte met een fraaie vloer met aan de achterzijde de woonkeuken met een modern keukenblok met apparatuur en aan de voorzijde de woonkamer met een fraaie industriële pui naar het balkon op het Zuiden.
Souterrain:
Als klap op de vuurpijl is er nog een heerlijk koele slaapkamer van maar liefst 23m2 in het souterrain met aansluitend nog een hobby/kasten kamer.
Bijzonderheden:
* Bouwjaar 2022, oorspronkelijk bouwjaar 1957 maar getransformeerd in dit jaar.
* Woonoppervlakte 128m2 en inhoud 427m3.
* Energielabel A.
* Alles is nieuw waaronder: de keuken, badkamer, toilet, elektra, cv-installatie, balkon met pui, stukwerk en het schilderwerk.
* Verkoper heeft appartement nooit bewoond, en de foto's zijn een impressie van een soortgelijke modelwoning.
* Notariskeuze is aan verkoper.
* De servicekosten bedragen circa € 179,35,- per maand, onder voorbehoud dat de splitsingsakte 100% definitief is gemaakt.
* Gevels zijn gezandstraald en het platte dak is voorzien van een fraai sedumdak.
* Voorbehoud onvoorwaardelijke toestemming verkoop.
* Voordeel overdrachtsbelasting voor verkoper.
* Eigen grond en oplevering in overleg.
































