Description
Eastonstraat 104 Amsterdam
Herewith we offer a beautiful, bright and spacious apartment of no less than 92m2. The apartment is located on the second floor and has 2 balconies.
With the Sloterplas, where you can enjoy walking, running or recreation and the Osdorplein shopping center around the corner, all the stores and specialty stores you need are within walking distance. Osdorpplein also has a gym and a theater.
In 10 minutes cycling you are in the city. Streetcar lines 1 and 17 stop practically in front of the door and take you to the center of Amsterdam within 10 minutes. Lelylaan Station is only a 5-minute bike ride away.
Parking in the neighborhood is by means of a "blue zone" permit system. A permit costs only € 154.90 (rate 2022) for 2 years.
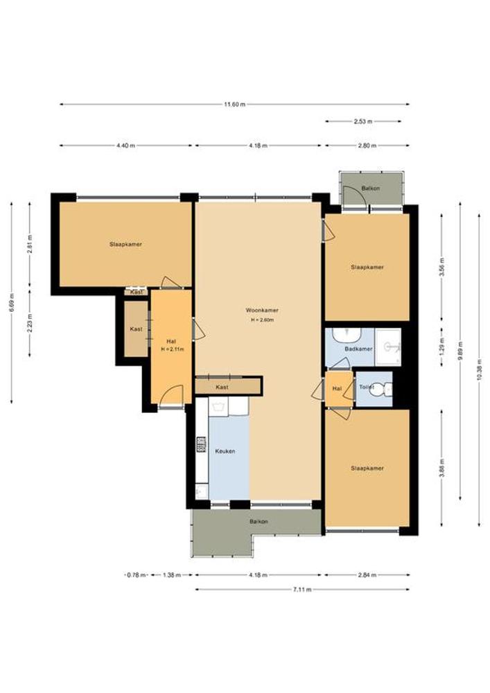
Layout:
Through the communal entrance with mailboxes, there is access to the elevator, staircase and the storerooms located in the basement.
You enter the apartment through the door adjacent to the gallery. After the front door you will find to the left in the hallway two large built-in closets. If you walk down the hallway, you walk into the 1st bedroom. This bedroom has a large window, so has a lot of natural light.
Through the central corridor you also have access to the large living room with an open kitchen.
The living room has large windows on both sides. The living room has enough space for a large sofa, TV and additional seating.
Adjacent to the living room is the kitchen. The kitchen has built-in appliances: a dishwasher, built-in oven and four-burner stove. In the kitchen is also the connection for the washing machine. One of the two balconies is also by the kitchen and overlooks the Sloterplas. Here is room for a bench or seat.
Next to the living room is the second bedroom, which now serves as an office. Also here is enough space for a double bed. Through this bedroom or study you also have access to the second balcony.
The bathroom has a sink and a shower. Next to the bathroom is a separate toilet.
Next to the toilet you have access to the 3rd bedroom! This bedroom can also easily accommodate a double bed and you still have space left for closets.
In the basement of the complex is a storage room of 6m2, equipped with electricity.
Leasehold:
The apartment is located on a plot owned by the municipality of Amsterdam. The fee for the perpetual ground lease, the canon, is € 112,75, - per year. The period runs until 15-07-2036.
Owners' Association:
It concerns an apartment right within an association of owners. One pays monthly service charges to the association, from which major maintenance, an advance for heating costs and property insurance is paid. The monthly costs are €395,35,06. Included in these costs is the advance payment of heating costs of €200.00. At the end of the year there will be a settlement based on the actual used heating costs.
- Apartment of 92 m2
- 3 bedrooms
- Two balconies
- Storage room of 7 m2, including electricity (easily accessible by (electric) bicycle)
- Located in a green area at the Sloterplas
- Apartment right
- Block heating
- Free parking through blue zone with permit system, costs € 154.90 (rate 2022) for 2 years
- Delivery in consultation
Curious and excited? Mail or call us for a viewing.
Herewith we offer a beautiful, bright and spacious apartment of no less than 92m2. The apartment is located on the second floor and has 2 balconies.
With the Sloterplas, where you can enjoy walking, running or recreation and the Osdorplein shopping center around the corner, all the stores and specialty stores you need are within walking distance. Osdorpplein also has a gym and a theater.
In 10 minutes cycling you are in the city. Streetcar lines 1 and 17 stop practically in front of the door and take you to the center of Amsterdam within 10 minutes. Lelylaan Station is only a 5-minute bike ride away.
Parking in the neighborhood is by means of a "blue zone" permit system. A permit costs only € 154.90 (rate 2022) for 2 years.
Layout:
Through the communal entrance with mailboxes, there is access to the elevator, staircase and the storerooms located in the basement.
You enter the apartment through the door adjacent to the gallery. After the front door you will find to the left in the hallway two large built-in closets. If you walk down the hallway, you walk into the 1st bedroom. This bedroom has a large window, so has a lot of natural light.
Through the central corridor you also have access to the large living room with an open kitchen.
The living room has large windows on both sides. The living room has enough space for a large sofa, TV and additional seating.
Adjacent to the living room is the kitchen. The kitchen has built-in appliances: a dishwasher, built-in oven and four-burner stove. In the kitchen is also the connection for the washing machine. One of the two balconies is also by the kitchen and overlooks the Sloterplas. Here is room for a bench or seat.
Next to the living room is the second bedroom, which now serves as an office. Also here is enough space for a double bed. Through this bedroom or study you also have access to the second balcony.
The bathroom has a sink and a shower. Next to the bathroom is a separate toilet.
Next to the toilet you have access to the 3rd bedroom! This bedroom can also easily accommodate a double bed and you still have space left for closets.
In the basement of the complex is a storage room of 6m2, equipped with electricity.
Leasehold:
The apartment is located on a plot owned by the municipality of Amsterdam. The fee for the perpetual ground lease, the canon, is € 112,75, - per year. The period runs until 15-07-2036.
Owners' Association:
It concerns an apartment right within an association of owners. One pays monthly service charges to the association, from which major maintenance, an advance for heating costs and property insurance is paid. The monthly costs are €395,35,06. Included in these costs is the advance payment of heating costs of €200.00. At the end of the year there will be a settlement based on the actual used heating costs.
- Apartment of 92 m2
- 3 bedrooms
- Two balconies
- Storage room of 7 m2, including electricity (easily accessible by (electric) bicycle)
- Located in a green area at the Sloterplas
- Apartment right
- Block heating
- Free parking through blue zone with permit system, costs € 154.90 (rate 2022) for 2 years
- Delivery in consultation
Curious and excited? Mail or call us for a viewing.

















































