Omschrijving
Eastonstraat 104 Amsterdam
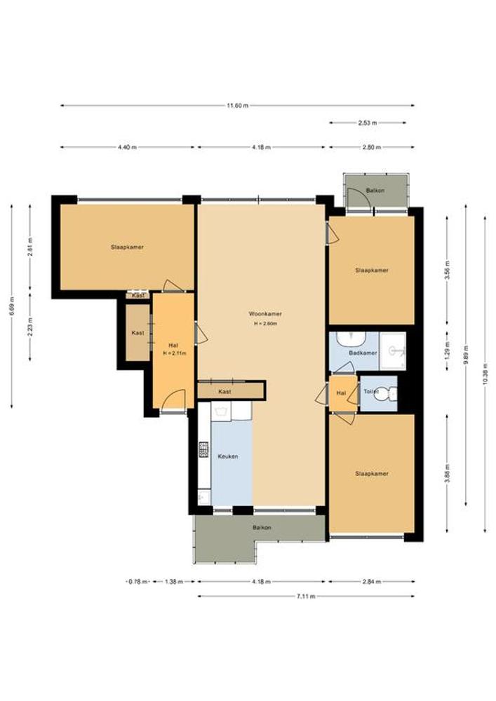
Hierbij bieden we een prachtig, licht en ruim appartement aan van maar liefst 92m2. Het appartement is gelegen op de tweede verdieping en beschikt over 2 balkons.
Met de Sloterplas, waar je heerlijk kunt wandelen, hardlopen of recreëren en het winkelcentrum Osdorplein om de hoek, zijn alle winkels en speciaalzaken die je nodig hebt op loopafstand. Ook beschikt het Osdorpplein over een sportschool en een theater.
In 10 minuten fietsen ben je in de stad. Tramlijnen 1 en 17 stoppen praktisch voor de deur en brengen je binnen 10 minuten richting het centrum van Amsterdam. Station Lelylaan is slechts op 5 minuten fietsafstand.
In de buurt is het parkeren d.m.v. een 'blauwe zone' vergunningsstelsel. Een vergunning kost slechts € 154,90 (tarief 2022) voor 2 jaar.
Indeling:
Via de gemeenschappelijke entree met brievenbussen is er toegang tot de lift, het trappenhuis en de, in de onderbouw gelegen, bergingen.
Je komt het appartement binnen via de deur aansluitend aan de galerij. Na de voordeur vind je links in de gang twee grote inbouwkasten. Als je de gang doorloopt, loop je tegen de 1e slaapkamer aan. Deze slaapkamer heeft een grote raampartij, dus beschikt over veel natuurlijk licht.
Via de centrale gang heb je ook toegang tot de grote woonkamer met een open keuken.
De woonkamer beschikt aan beide kanten over grote raampartijen. In de woonkamer is genoeg ruimte voor een grote bank, TV en extra zitje.
Aangrenzend aan de woonkamer bevindt zich de keuken. De keuken is voorzien van inbouwapparatuur: een vaatwasser, ingebouwde oven en vierpits gasfornuis. In de keuken bevindt zich tevens de aansluiting voor de wasmachine. Een van de twee balkons is ook bij de keuken en heeft uitzicht over de Sloterplas. Hier is plek voor een bankje of zitje.
Naast de woonkamer is de tweede slaapkamer gevestigd, die nu fungeert als werkkamer. Ook hier is genoeg ruimte voor een tweepersoonsbed. Via deze slaap- of werkkamer heb je ook toegang tot het tweede balkon.
De badkamer is voorzien van een wastafel en een douche. Naast de badkamer bevindt zich een separaat toilet.
Naast het toilet heb je de beschikking over de 3e slaapkamer! Ook in deze slaapkamer kan makkelijk een tweepersoonsbed staan en je hebt dan nog ruimte over voor kasten.
In de onderbouw van het complex bevindt zich een berging van 6m2, voorzien van elektriciteit.
Erfpacht:
Het appartement ligt op een perceel dat eigendom is van de gemeente Amsterdam. De vergoeding voor de voortdurende erfpacht, de canon, bedraagt € 112,75, - per jaar. Het tijdvak loopt tot en met 15-07-2036.
Vereniging van Eigenaren:
Het betreft een appartementsrecht binnen een vereniging van eigenaren. Men betaalt maandelijks servicekosten aan de vereniging, waar groot onderhoud, een voorschot voor de stookkosten en een opstalverzekering van wordt betaald. De maandelijkse kosten zijn €395,35,06. Inbegrepen in deze kosten zit het voorschot stookkosten van €200,00. Aan het eind van het jaar wordt er een afrekening gemaakt o.b.v. de werkelijk gebruikte stookkosten.
- Appartement van 92 m2
- 3 slaapkamers
- Twee balkons
- Berging van 7 m2, inclusief elektra (makkelijk met de (elektrische) fiets te bereiken)
- Gelegen in een groene omgeving aan de Sloterplas
- Appartementsrecht
- Blokverwarming
- Gratis parkeren d.m.v. blauwe zone met vergunningsstelsel, kosten € 154,90 (tarief 2022) voor 2 jaar
- Oplevering in overleg
Nieuwsgierig en enthousiast geworden? Mail of bel ons snel voor een bezichtiging.
Hierbij bieden we een prachtig, licht en ruim appartement aan van maar liefst 92m2. Het appartement is gelegen op de tweede verdieping en beschikt over 2 balkons.
Met de Sloterplas, waar je heerlijk kunt wandelen, hardlopen of recreëren en het winkelcentrum Osdorplein om de hoek, zijn alle winkels en speciaalzaken die je nodig hebt op loopafstand. Ook beschikt het Osdorpplein over een sportschool en een theater.
In 10 minuten fietsen ben je in de stad. Tramlijnen 1 en 17 stoppen praktisch voor de deur en brengen je binnen 10 minuten richting het centrum van Amsterdam. Station Lelylaan is slechts op 5 minuten fietsafstand.
In de buurt is het parkeren d.m.v. een 'blauwe zone' vergunningsstelsel. Een vergunning kost slechts € 154,90 (tarief 2022) voor 2 jaar.
Indeling:
Via de gemeenschappelijke entree met brievenbussen is er toegang tot de lift, het trappenhuis en de, in de onderbouw gelegen, bergingen.
Je komt het appartement binnen via de deur aansluitend aan de galerij. Na de voordeur vind je links in de gang twee grote inbouwkasten. Als je de gang doorloopt, loop je tegen de 1e slaapkamer aan. Deze slaapkamer heeft een grote raampartij, dus beschikt over veel natuurlijk licht.
Via de centrale gang heb je ook toegang tot de grote woonkamer met een open keuken.
De woonkamer beschikt aan beide kanten over grote raampartijen. In de woonkamer is genoeg ruimte voor een grote bank, TV en extra zitje.
Aangrenzend aan de woonkamer bevindt zich de keuken. De keuken is voorzien van inbouwapparatuur: een vaatwasser, ingebouwde oven en vierpits gasfornuis. In de keuken bevindt zich tevens de aansluiting voor de wasmachine. Een van de twee balkons is ook bij de keuken en heeft uitzicht over de Sloterplas. Hier is plek voor een bankje of zitje.
Naast de woonkamer is de tweede slaapkamer gevestigd, die nu fungeert als werkkamer. Ook hier is genoeg ruimte voor een tweepersoonsbed. Via deze slaap- of werkkamer heb je ook toegang tot het tweede balkon.
De badkamer is voorzien van een wastafel en een douche. Naast de badkamer bevindt zich een separaat toilet.
Naast het toilet heb je de beschikking over de 3e slaapkamer! Ook in deze slaapkamer kan makkelijk een tweepersoonsbed staan en je hebt dan nog ruimte over voor kasten.
In de onderbouw van het complex bevindt zich een berging van 6m2, voorzien van elektriciteit.
Erfpacht:
Het appartement ligt op een perceel dat eigendom is van de gemeente Amsterdam. De vergoeding voor de voortdurende erfpacht, de canon, bedraagt € 112,75, - per jaar. Het tijdvak loopt tot en met 15-07-2036.
Vereniging van Eigenaren:
Het betreft een appartementsrecht binnen een vereniging van eigenaren. Men betaalt maandelijks servicekosten aan de vereniging, waar groot onderhoud, een voorschot voor de stookkosten en een opstalverzekering van wordt betaald. De maandelijkse kosten zijn €395,35,06. Inbegrepen in deze kosten zit het voorschot stookkosten van €200,00. Aan het eind van het jaar wordt er een afrekening gemaakt o.b.v. de werkelijk gebruikte stookkosten.
- Appartement van 92 m2
- 3 slaapkamers
- Twee balkons
- Berging van 7 m2, inclusief elektra (makkelijk met de (elektrische) fiets te bereiken)
- Gelegen in een groene omgeving aan de Sloterplas
- Appartementsrecht
- Blokverwarming
- Gratis parkeren d.m.v. blauwe zone met vergunningsstelsel, kosten € 154,90 (tarief 2022) voor 2 jaar
- Oplevering in overleg
Nieuwsgierig en enthousiast geworden? Mail of bel ons snel voor een bezichtiging.

















































