Description
BELGIËLAAN 48 HAARLEM
STARTERSWONING VOOR EEN VASTE PRIJS VAN €251.500 K.K.
***ENGLISH TRANSLATION BELOW***
Op zoek naar een prachtige starterswoning in Haarlem? Dan hebben wij het ideale appartement voor je gevonden! Dit goed onderhouden appartement met kunststof kozijnen en HR++ glas bevindt zich op de 3e verdieping van een appartementencomplex op eigen grond. En dat voor een vaste prijs van €251.500 k.k.!
INDELING:
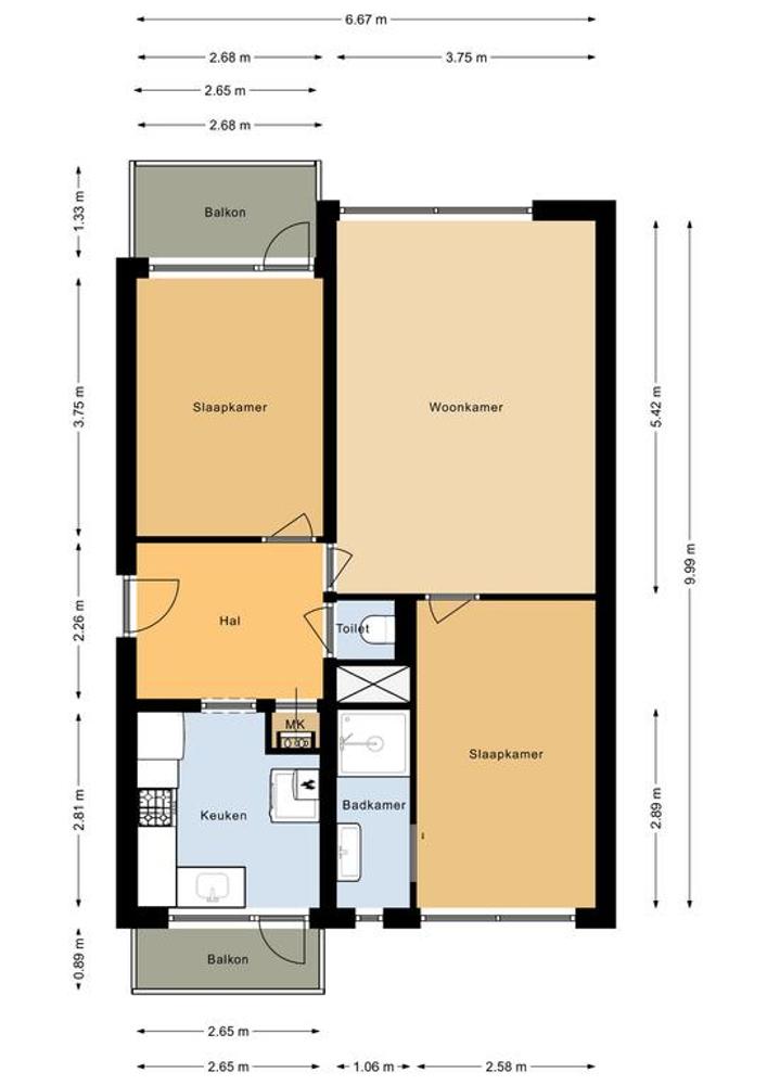
Aan de voorkant van het appartementencomplex bevindt zich de deur naar de entree van de trappenhal en de ruime berging van 8 vierkante meter.
Als je de trap naar boven neemt, kom je bij de voordeur van de woning. Achter de voordeur bevindt zich de entreehal, die toegang biedt tot de keuken, WC, 1e slaapkamer, woonkamer en de meterkast.
De keuken is uitgerust met een inductiekookplaat, een ingebouwde oven en afzuigkap, en biedt voldoende kastruimte. De koelkast, vaatwasser, wasmachine en droger zijn allemaal losstaande apparaten in de woning. Tegen een vergoeding kunnen de koelkast en vaatwasser worden overgenomen. Het balkon op het noorden is te bereiken via de keuken.
Wanneer je links van de hal loopt, bereik je de eerste slaapkamer die momenteel is ingericht als kantoor- en opslagruimte. Vanuit deze slaapkamer heb je toegang tot het balkon op het zuiden. Met een oppervlakte van 10 vierkante meter is er genoeg ruimte voor een tweepersoonsbed.
Als je recht doorloopt vanuit de entree, kom je in de woonkamer terecht. Door de grote ramen komt er veel natuurlijk licht binnen. Vanuit de woonkamer bereik je de andere slaapkamer. De badkamer grenst aan deze slaapkamer en hoewel deze niet erg groot is, is hij van alle gemakken voorzien, inclusief een ruime inloopdouche en wastafel.
OMGEVING:
Gelegen in een rustige woonwijk met veel groen, biedt dit appartement veel voordelen. Zo is er een Vomar supermarkt tegenover het complex en ligt de bushalte Belgiëlaan op slechts 1 minuut loopafstand. Hierdoor ben je binnen no-time op het centraal station van Haarlem en kun je gemakkelijk naar Amsterdam, Alkmaar of Leiden reizen.
Neem de fiets en binnen 10 minuten ben je in het sfeervolle centrum van Haarlem. Of maak een korte wandeling van een kwartiertje naar het Burgemeester Reinaldapark en stop onderweg voor een heerlijke pannenkoek bij Pannenkoeken Paradijs Haarlem.
Het treinstation van Haarlem ligt op slechts 15 minuten fietsen en is ook bereikbaar met de bus, die op 1 minuut afstand van de woning stopt. Ook kun je gemakkelijk de N205 oprijden, waardoor je snel op de snelweg richting Amsterdam, Alkmaar of Leiden bent.
GOED OM TE WETEN:
- Woonoppervlakte: 64 m²;
- Overige inpandige ruimte (berging): 8 m²;
- Bruto inhoud van de woning: 248 m m3;
- Twee balkons: één op het noorden en één op het zuiden;
- Voorzien van kunststof kozijnen met HR++ glas;
- Energielabel E, opgemaakt in 2015, grote kans op een beter label bij nieuwe registratie;
- Maandelijkse VvE bijdrage €156,- (inclusief stookkosten €25,-) per maand;
- Centrale verwarming middels blokverwarming;
- Warm- en koud water middels een elektrische boiler;
- Gratis parkeren aan de achterkant van de woning;
- Oplevering/ aanvaarding vanaf 1 oktober 2023.
Kortom; een prachtig appartement voor een vaste prijs van €251.500,- k.k.!
Wil je meer weten over dit prachtige appartement aan de Belgiëlaan 48 in Haarlem? Neem dan contact met ons op. We vertellen je graag meer en plannen graag een bezichtiging met je in.
***ENGLISH TRANSLATION BELOW***
BELGIËLAAN 48 HAARLEM
STARTER HOME FOR A FIXED PRICE OF €251,500 K.K.
Looking for a beautiful starter home in Haarlem? Then we have found the ideal apartment for you! This well-maintained apartment with ‘kunststof’ frames and HR ++ glass is located on the 3rd floor of an apartment complex on own ground. And that for a fixed price of € €251.500 k.k.!
LAYOUT:
At the front of the apartment complex is the door to the entrance of the stairwell and the spacious storage room of 8 square meters.
If you take the stairs up, you will arrive at the front door of the house. Behind the front door is the entrance hall, which provides access to the kitchen, toilet, 1st bedroom, living room and the meter cupboard.
The kitchen is equipped with an induction hob, a built-in oven and extractor hood, and offers ample cupboard space. The refrigerator, dishwasher, washing machine and dryer are all separate appliances in the home. For a fee, the refrigerator and dishwasher can be taken over. The north-facing balcony can be reached through the kitchen.
If you walk to the left of the hallway, you will reach the first bedroom which is currently furnished as an office and storage space. From this bedroom, you have access to the south-facing balcony. With a surface area of 10 square meters, there is enough space for a double bed.
If you continue straight from the entrance, you will end up in the living room. The large windows allow for plenty of natural light. From the living room, you can access the other bedroom. The bathroom is connected to this bedroom and although it is not very large, it is fully equipped with a spacious walk-in shower and sink.
ENVIRONMENT:
Located in a quiet residential area with lots of greenery, this apartment offers many advantages. For example, there is a Vomar supermarket opposite the complex and the bus stop Belgiëlaan is only a 1-minute walk away. This means you can reach Haarlem's central station in no time and you can easily travel to Amsterdam, Alkmaar or Leiden.
Take the bike and within 10 minutes you are in the charming center of Haarlem. Or take a short walk of about fifteen minutes to the Burgemeester Reinaldapark and stop along the way for a delicious pancake at Pannenkoeken Paradijs Haarlem.
The train station of Haarlem is only a 15-minute bike ride away and is also accessible by bus, which stops 1 minute away from the house. You can also easily get on the N205, which will quickly take you to the highway towards Amsterdam, Alkmaar or Leiden.
GOOD TO KNOW:
- Living area: 64 m²;
- Other indoor space (storage room): 8 m²;
- Gross content of the house: 248 m m3;
- Two balconies: one on the north and one on the south;
- Equipped with ‘kunststof’ frames with HR ++ glass;
- Energy label E, drawn up in 2015, good chance of a better label with new registration;
- Monthly VvE contribution € 156 (including heating costs € 25) per month;
- Central heating through block heating;
- Hot and cold water through an electric boiler;
- Free parking at the back of the house;
- Delivery/acceptance from 1st of October 2023.
In short; a beautiful apartment for a fixed price of € 251,500 k.k.!
Would you like to know more about this beautiful apartment at Belgiumlaan 48 in Haarlem? Then please contact us. We are happy to tell you more and to schedule a viewing with you.
STARTERSWONING VOOR EEN VASTE PRIJS VAN €251.500 K.K.
***ENGLISH TRANSLATION BELOW***
Op zoek naar een prachtige starterswoning in Haarlem? Dan hebben wij het ideale appartement voor je gevonden! Dit goed onderhouden appartement met kunststof kozijnen en HR++ glas bevindt zich op de 3e verdieping van een appartementencomplex op eigen grond. En dat voor een vaste prijs van €251.500 k.k.!
INDELING:
Aan de voorkant van het appartementencomplex bevindt zich de deur naar de entree van de trappenhal en de ruime berging van 8 vierkante meter.
Als je de trap naar boven neemt, kom je bij de voordeur van de woning. Achter de voordeur bevindt zich de entreehal, die toegang biedt tot de keuken, WC, 1e slaapkamer, woonkamer en de meterkast.
De keuken is uitgerust met een inductiekookplaat, een ingebouwde oven en afzuigkap, en biedt voldoende kastruimte. De koelkast, vaatwasser, wasmachine en droger zijn allemaal losstaande apparaten in de woning. Tegen een vergoeding kunnen de koelkast en vaatwasser worden overgenomen. Het balkon op het noorden is te bereiken via de keuken.
Wanneer je links van de hal loopt, bereik je de eerste slaapkamer die momenteel is ingericht als kantoor- en opslagruimte. Vanuit deze slaapkamer heb je toegang tot het balkon op het zuiden. Met een oppervlakte van 10 vierkante meter is er genoeg ruimte voor een tweepersoonsbed.
Als je recht doorloopt vanuit de entree, kom je in de woonkamer terecht. Door de grote ramen komt er veel natuurlijk licht binnen. Vanuit de woonkamer bereik je de andere slaapkamer. De badkamer grenst aan deze slaapkamer en hoewel deze niet erg groot is, is hij van alle gemakken voorzien, inclusief een ruime inloopdouche en wastafel.
OMGEVING:
Gelegen in een rustige woonwijk met veel groen, biedt dit appartement veel voordelen. Zo is er een Vomar supermarkt tegenover het complex en ligt de bushalte Belgiëlaan op slechts 1 minuut loopafstand. Hierdoor ben je binnen no-time op het centraal station van Haarlem en kun je gemakkelijk naar Amsterdam, Alkmaar of Leiden reizen.
Neem de fiets en binnen 10 minuten ben je in het sfeervolle centrum van Haarlem. Of maak een korte wandeling van een kwartiertje naar het Burgemeester Reinaldapark en stop onderweg voor een heerlijke pannenkoek bij Pannenkoeken Paradijs Haarlem.
Het treinstation van Haarlem ligt op slechts 15 minuten fietsen en is ook bereikbaar met de bus, die op 1 minuut afstand van de woning stopt. Ook kun je gemakkelijk de N205 oprijden, waardoor je snel op de snelweg richting Amsterdam, Alkmaar of Leiden bent.
GOED OM TE WETEN:
- Woonoppervlakte: 64 m²;
- Overige inpandige ruimte (berging): 8 m²;
- Bruto inhoud van de woning: 248 m m3;
- Twee balkons: één op het noorden en één op het zuiden;
- Voorzien van kunststof kozijnen met HR++ glas;
- Energielabel E, opgemaakt in 2015, grote kans op een beter label bij nieuwe registratie;
- Maandelijkse VvE bijdrage €156,- (inclusief stookkosten €25,-) per maand;
- Centrale verwarming middels blokverwarming;
- Warm- en koud water middels een elektrische boiler;
- Gratis parkeren aan de achterkant van de woning;
- Oplevering/ aanvaarding vanaf 1 oktober 2023.
Kortom; een prachtig appartement voor een vaste prijs van €251.500,- k.k.!
Wil je meer weten over dit prachtige appartement aan de Belgiëlaan 48 in Haarlem? Neem dan contact met ons op. We vertellen je graag meer en plannen graag een bezichtiging met je in.
***ENGLISH TRANSLATION BELOW***
BELGIËLAAN 48 HAARLEM
STARTER HOME FOR A FIXED PRICE OF €251,500 K.K.
Looking for a beautiful starter home in Haarlem? Then we have found the ideal apartment for you! This well-maintained apartment with ‘kunststof’ frames and HR ++ glass is located on the 3rd floor of an apartment complex on own ground. And that for a fixed price of € €251.500 k.k.!
LAYOUT:
At the front of the apartment complex is the door to the entrance of the stairwell and the spacious storage room of 8 square meters.
If you take the stairs up, you will arrive at the front door of the house. Behind the front door is the entrance hall, which provides access to the kitchen, toilet, 1st bedroom, living room and the meter cupboard.
The kitchen is equipped with an induction hob, a built-in oven and extractor hood, and offers ample cupboard space. The refrigerator, dishwasher, washing machine and dryer are all separate appliances in the home. For a fee, the refrigerator and dishwasher can be taken over. The north-facing balcony can be reached through the kitchen.
If you walk to the left of the hallway, you will reach the first bedroom which is currently furnished as an office and storage space. From this bedroom, you have access to the south-facing balcony. With a surface area of 10 square meters, there is enough space for a double bed.
If you continue straight from the entrance, you will end up in the living room. The large windows allow for plenty of natural light. From the living room, you can access the other bedroom. The bathroom is connected to this bedroom and although it is not very large, it is fully equipped with a spacious walk-in shower and sink.
ENVIRONMENT:
Located in a quiet residential area with lots of greenery, this apartment offers many advantages. For example, there is a Vomar supermarket opposite the complex and the bus stop Belgiëlaan is only a 1-minute walk away. This means you can reach Haarlem's central station in no time and you can easily travel to Amsterdam, Alkmaar or Leiden.
Take the bike and within 10 minutes you are in the charming center of Haarlem. Or take a short walk of about fifteen minutes to the Burgemeester Reinaldapark and stop along the way for a delicious pancake at Pannenkoeken Paradijs Haarlem.
The train station of Haarlem is only a 15-minute bike ride away and is also accessible by bus, which stops 1 minute away from the house. You can also easily get on the N205, which will quickly take you to the highway towards Amsterdam, Alkmaar or Leiden.
GOOD TO KNOW:
- Living area: 64 m²;
- Other indoor space (storage room): 8 m²;
- Gross content of the house: 248 m m3;
- Two balconies: one on the north and one on the south;
- Equipped with ‘kunststof’ frames with HR ++ glass;
- Energy label E, drawn up in 2015, good chance of a better label with new registration;
- Monthly VvE contribution € 156 (including heating costs € 25) per month;
- Central heating through block heating;
- Hot and cold water through an electric boiler;
- Free parking at the back of the house;
- Delivery/acceptance from 1st of October 2023.
In short; a beautiful apartment for a fixed price of € 251,500 k.k.!
Would you like to know more about this beautiful apartment at Belgiumlaan 48 in Haarlem? Then please contact us. We are happy to tell you more and to schedule a viewing with you.
































