Description
Are you looking for a house with a large roof terrace where you can move in immediately? And near the center, but in a quiet and green area? Maybe this is your new home.
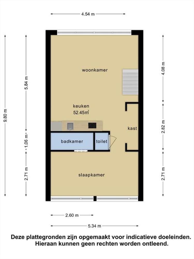
In Molenwijk, the most popular green area of Haarlem South, you will find this new turnkey 2-room apartment. The spacious living room is very light because of the large windows with french balcony. The entire house is equipped with a high-quality PVC herringbone floor. On the huge roof terrace you can enjoy the sun all day. The front bedroom is practical in shape and due to the large windows very bright with green views. The bathroom has a sleek finish and is equipped with every luxury. The new kitchen is complete with dishwasher, oven and refrigerator. There is a spacious indoor space for the washing machine. In addition to the storage space outside, there is also a and enclosed storage inside on the first floor. During renovation (2021) the central heating boiler and all gas pipes, electricity and radiators have been renewed. Has energy label A.
Within 10 minutes you are by bike in the center of Haarlem. Do you prefer nature? Within 2 minutes walk to recreation area 'Het Molenpark' with the Molenplas, where there is a city beach, a restaurant and other recreational facilities. The beach of Zandvoort is about 30 minutes by bike practically around the corner. Parking is free in front of the door here.
Several schools, local stores, sports facilities and childcare locations are within walking distance. A playground for children can be found right outside the door. In the immediate vicinity there is currently a lot of investment. There is now a new cinema and apartment complexes are being built. There is also a
§n whole new parking garage put down. In the future there will also be a food hall and various other catering establishments.
The property has an ideal connection to public transport (including R-Net towards Haarlem station, Amsterdam and Schiphol Airport). Highways towards the central highways can be reached within 10 minutes.
Living in this beautiful home in one of the most popular up-and-coming neighborhoods of Haarlem? Call for an appointment.
Details:
* totally renovated (2021)
* large roof terrace
* low service costs € 65.00 p/month
* quiet, green location
* very bright apartment
* delivery can be direct
* energy label A
* free parking
In Molenwijk, the most popular green area of Haarlem South, you will find this new turnkey 2-room apartment. The spacious living room is very light because of the large windows with french balcony. The entire house is equipped with a high-quality PVC herringbone floor. On the huge roof terrace you can enjoy the sun all day. The front bedroom is practical in shape and due to the large windows very bright with green views. The bathroom has a sleek finish and is equipped with every luxury. The new kitchen is complete with dishwasher, oven and refrigerator. There is a spacious indoor space for the washing machine. In addition to the storage space outside, there is also a and enclosed storage inside on the first floor. During renovation (2021) the central heating boiler and all gas pipes, electricity and radiators have been renewed. Has energy label A.
Within 10 minutes you are by bike in the center of Haarlem. Do you prefer nature? Within 2 minutes walk to recreation area 'Het Molenpark' with the Molenplas, where there is a city beach, a restaurant and other recreational facilities. The beach of Zandvoort is about 30 minutes by bike practically around the corner. Parking is free in front of the door here.
Several schools, local stores, sports facilities and childcare locations are within walking distance. A playground for children can be found right outside the door. In the immediate vicinity there is currently a lot of investment. There is now a new cinema and apartment complexes are being built. There is also a
§n whole new parking garage put down. In the future there will also be a food hall and various other catering establishments.
The property has an ideal connection to public transport (including R-Net towards Haarlem station, Amsterdam and Schiphol Airport). Highways towards the central highways can be reached within 10 minutes.
Living in this beautiful home in one of the most popular up-and-coming neighborhoods of Haarlem? Call for an appointment.
Details:
* totally renovated (2021)
* large roof terrace
* low service costs € 65.00 p/month
* quiet, green location
* very bright apartment
* delivery can be direct
* energy label A
* free parking

















