Description
Let op:
Deze woningen bieden we nu aan voor een vaste prijs van €525.000 voor starters die bij ons ingeschreven staan. De woning is ook te vinden op Funda voor een vraagprijs van €550.000 maar wij mogen hem aanbieden voor €525.000.
Voorafgaand aan de verkoop van de woning is er een taxatierapport opgemaakt, de marktwaarde kwam toen uit op €575.000.
Nu Te Koop! Korte Water 202
Ruim wonen in Amsterdam? Dat kan in deze ruime eengezinswoning met 3 ruime slaapkamers gelegen in het populaire en opkomende Amsterdam De Punt.
Ligging:
De woning is gelegen in Amsterdam De Punt op een rustige plek, te midden van groen en aan een doodlopend straatje gelegen. De woning heeft een zeer riante tuin op het Oosten, welke lekker ruim is en veel privacy biedt. In de omgeving treft u diverse winkels o.a. Winkelcentrum De Dukaat (Tussenmeer en Osdorpplein). Scholen voor basis- en voortgezet onderwijs zijn op loopafstand gelegen. De woning is zowel met het openbaar vervoer (tram 17 welke u binnen 20 minuten naar het centrum van Amsterdam brengt) als per auto zeer goed bereikbaar. Diverse uitvalswegen richting o.a. Haarlem, de A9, A5 en de ring A10 vindt u in de nabije omgeving.
Indeling:
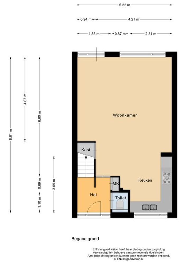
Begane grond:
Via de voortuin kom je in de ruime hal met meterkast, toilet met hangcloset en trapopgang naar de eerste verdieping. Vanuit de hal kom je de woonkamer binnen. De ruime woonkamer heeft aan de voorzijde een open keuken voorzien van diverse inbouwapparatuur. Via de tuindeur komt u in de achtertuin welke circa 13 meter diep is en onderhoudsarm is aangelegd met bestrating.
Bij de woning hoort een vrijstaande stenen berging, welke in de voortuin staat. Hier is veel bergruimte en mogelijkheid tot stalling van fietsen en-/of een motorfiets.
Eerste verdieping:
Op deze etage bevindt zich de overloop met toegang tot de twee zeer ruime slaapkamers (voorheen drie) aan de voor- en achterzijde van de woning en de badkamer. De badkamer is voorzien van een wastafelmeubel, toilet en een ligbad.
Tweede verdieping:
Op deze etage vindt je het was-gedeelte met aansluitingen voor de wasmachine en droger. Tevens is hier een zeer ruime zolder kamer gerealiseerd.
Bijzonderheden:
- Eigen grond!
- Woonoppervlakte van 113m²
- Meetrapport conform NEN2580 aanwezig
- Tuin gelegen op het zonnige oosten
- 3 slaapkamers
- Oplevering in overleg
- Notariskeuze aan de koper, mits in Amsterdam. (Amsterdams model)
Deze woningen bieden we nu aan voor een vaste prijs van €525.000 voor starters die bij ons ingeschreven staan. De woning is ook te vinden op Funda voor een vraagprijs van €550.000 maar wij mogen hem aanbieden voor €525.000.
Voorafgaand aan de verkoop van de woning is er een taxatierapport opgemaakt, de marktwaarde kwam toen uit op €575.000.
Nu Te Koop! Korte Water 202
Ruim wonen in Amsterdam? Dat kan in deze ruime eengezinswoning met 3 ruime slaapkamers gelegen in het populaire en opkomende Amsterdam De Punt.
Ligging:
De woning is gelegen in Amsterdam De Punt op een rustige plek, te midden van groen en aan een doodlopend straatje gelegen. De woning heeft een zeer riante tuin op het Oosten, welke lekker ruim is en veel privacy biedt. In de omgeving treft u diverse winkels o.a. Winkelcentrum De Dukaat (Tussenmeer en Osdorpplein). Scholen voor basis- en voortgezet onderwijs zijn op loopafstand gelegen. De woning is zowel met het openbaar vervoer (tram 17 welke u binnen 20 minuten naar het centrum van Amsterdam brengt) als per auto zeer goed bereikbaar. Diverse uitvalswegen richting o.a. Haarlem, de A9, A5 en de ring A10 vindt u in de nabije omgeving.
Indeling:
Begane grond:
Via de voortuin kom je in de ruime hal met meterkast, toilet met hangcloset en trapopgang naar de eerste verdieping. Vanuit de hal kom je de woonkamer binnen. De ruime woonkamer heeft aan de voorzijde een open keuken voorzien van diverse inbouwapparatuur. Via de tuindeur komt u in de achtertuin welke circa 13 meter diep is en onderhoudsarm is aangelegd met bestrating.
Bij de woning hoort een vrijstaande stenen berging, welke in de voortuin staat. Hier is veel bergruimte en mogelijkheid tot stalling van fietsen en-/of een motorfiets.
Eerste verdieping:
Op deze etage bevindt zich de overloop met toegang tot de twee zeer ruime slaapkamers (voorheen drie) aan de voor- en achterzijde van de woning en de badkamer. De badkamer is voorzien van een wastafelmeubel, toilet en een ligbad.
Tweede verdieping:
Op deze etage vindt je het was-gedeelte met aansluitingen voor de wasmachine en droger. Tevens is hier een zeer ruime zolder kamer gerealiseerd.
Bijzonderheden:
- Eigen grond!
- Woonoppervlakte van 113m²
- Meetrapport conform NEN2580 aanwezig
- Tuin gelegen op het zonnige oosten
- 3 slaapkamers
- Oplevering in overleg
- Notariskeuze aan de koper, mits in Amsterdam. (Amsterdams model)































