Description
Lange Vijfmatlaan 76, Haarlem - Starter apartment with priority for a fixed price of €440,000 k.k.
Super nice, modern and bright 3-room apartment with a lovely terrace and a balcony. This apartment is located in the young and child-friendly residential area "De Entree van Haarlem" and is located on the second floor of a small apartment complex.
An apartment with a generous garden feel in Haarlem. One in which you can actually immediately start unpacking the moving boxes.
INDELING
Ground floor: Enclosed parking basement with parking and collective bicycle storage.
Enclosed entrance to the elevator and staircase.
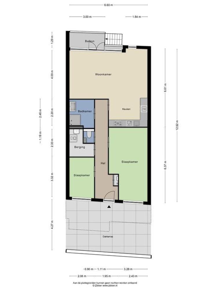
Second floor: Spacious terrace which gives the feeling of a private garden; entrance hall with meter cupboard; toilet with hand basin; bathroom with washbasin and shower corner; 2 bedrooms; living room with balcony at the front of the house; open kitchen with appliances including 5-burner stove (gas on glass), extractor, microwave, dishwasher, refrigerator and separate freezer; storage room with washer and dryer connections, mechanical ventilation unit, heat recovery system and central heating system.
LOCATION:
Why is it so nice to live in the young modern neighborhood "the Entrance"? You live a stone's throw from the center of Haarlem. The ancient streets with exclusive boutiques and cozy cafes are less than 10 minutes cycling distance away.
From your house you walk within minutes to the bus stop along the A9 highway and new bus station (public transport hub) at Schipholweg which will be put into use in 2024.
Great opportunities for relaxing and fanatical outdoor sports, running, cycling ... a wonderful place to live!
SPECIAL MENTIONS:
- Built in 2013;
- Living area approx 83 m2;
- Energy label A;
- Sunny terrace and balcony;
- Private parking in garage;
- 2 bedrooms;
- C.V.-boiler: 2013;
- Only 5 years occupied;
- Service costs joint for the house and parking: € 182, - p / m. (incl. advance water € 20, -, building insurance, major maintenance, cleaning, etc.);
- Delivery in consultation.
Super nice, modern and bright 3-room apartment with a lovely terrace and a balcony. This apartment is located in the young and child-friendly residential area "De Entree van Haarlem" and is located on the second floor of a small apartment complex.
An apartment with a generous garden feel in Haarlem. One in which you can actually immediately start unpacking the moving boxes.
INDELING
Ground floor: Enclosed parking basement with parking and collective bicycle storage.
Enclosed entrance to the elevator and staircase.
Second floor: Spacious terrace which gives the feeling of a private garden; entrance hall with meter cupboard; toilet with hand basin; bathroom with washbasin and shower corner; 2 bedrooms; living room with balcony at the front of the house; open kitchen with appliances including 5-burner stove (gas on glass), extractor, microwave, dishwasher, refrigerator and separate freezer; storage room with washer and dryer connections, mechanical ventilation unit, heat recovery system and central heating system.
LOCATION:
Why is it so nice to live in the young modern neighborhood "the Entrance"? You live a stone's throw from the center of Haarlem. The ancient streets with exclusive boutiques and cozy cafes are less than 10 minutes cycling distance away.
From your house you walk within minutes to the bus stop along the A9 highway and new bus station (public transport hub) at Schipholweg which will be put into use in 2024.
Great opportunities for relaxing and fanatical outdoor sports, running, cycling ... a wonderful place to live!
SPECIAL MENTIONS:
- Built in 2013;
- Living area approx 83 m2;
- Energy label A;
- Sunny terrace and balcony;
- Private parking in garage;
- 2 bedrooms;
- C.V.-boiler: 2013;
- Only 5 years occupied;
- Service costs joint for the house and parking: € 182, - p / m. (incl. advance water € 20, -, building insurance, major maintenance, cleaning, etc.);
- Delivery in consultation.









































