Omschrijving
Lange Vijfmatlaan 76, Haarlem - Starterswoning met voorrang voor een vaste prijs van €440.000 k.k.
Superleuk, modern en licht 3-kamer appartement met een heerlijk terras én een balkon. Dit appartement ligt in de jonge en kindvriendelijke woonwijk "De Entree van Haarlem” en bevindt zich op de eerste etage van een kleinschalig appartementencomplex.
Een appartement met een royaal tuingevoel in Haarlem. Eentje waarin je eigenlijk direct kunt beginnen met het uitpakken van de verhuisdozen.
INDELING
Parterre: Afgesloten parkeerkelder met parkeerplaats en collectieve fietsenberging.
Afgesloten entree naar de liftinstallatie en het trapportaal.
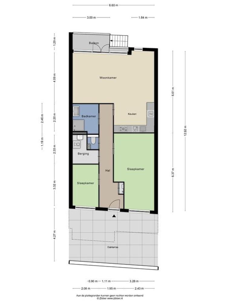
Eerste etage: Ruim terras welke het gevoel van een eigen tuin geeft; entree; ruime hal met meterkast; toilet met fonteintje; badkamer met wastafelmeubel en douchehoek; 2 slaapkamers; woonkamer met balkon aan de voorzijde van de woning; open keuken voorzien van diverse inbouwapparatuur o.a. 5-pits kookplaat (gas op glas), afzuigkap, combimagnetron, vaatwasser, koelkast en aparte vriezer; inpandige berging met wasmachine- en drogeraansluiting, mechanische ventilatie unit, warmte terugwininstallatie en cv-opstelling.
LOCATIE:
Waarom is het zo fijn wonen in de jonge moderne wijk “de Entree”? Je woont op een steenworp van het centrum van Haarlem. De eeuwenoude straatjes met exclusieve boetiekjes en gezellige cafés zijn nog geen 10 minuten fietsafstand verwijderd.
Vanuit je huis loop je binnen enkele minuten naar de bushalte langs de snelweg A9 en nieuwe busstation (OV knooppunt) op de Schipholweg welke in 2024 in gebruik wordt genomen.
Geweldige mogelijkheden voor relaxen en fanatiek buitensporten, hardlopen, fietsen… een prachtige plek dus om te wonen!
BIJZONDERHEDEN:
- Bouwjaar 2013;
- Woonoppervlakte ca. 83 m2;
- Energielabel A;
- Zonnig terras én balkon;
- Privé parkeerplek in de garage;
- 2 slaapkamers;
- C.V.-ketel: 2013;
- Slechts 5 jaar bewoond;
- Service kosten gezamenlijk voor de woning en de parkeerplaats: € 182,- p/m. (incl. voorschot water € 20,-, opstalverzekering, groot onderhoud, schoonmaak etc.);
- Oplevering in overleg.
Superleuk, modern en licht 3-kamer appartement met een heerlijk terras én een balkon. Dit appartement ligt in de jonge en kindvriendelijke woonwijk "De Entree van Haarlem” en bevindt zich op de eerste etage van een kleinschalig appartementencomplex.
Een appartement met een royaal tuingevoel in Haarlem. Eentje waarin je eigenlijk direct kunt beginnen met het uitpakken van de verhuisdozen.
INDELING
Parterre: Afgesloten parkeerkelder met parkeerplaats en collectieve fietsenberging.
Afgesloten entree naar de liftinstallatie en het trapportaal.
Eerste etage: Ruim terras welke het gevoel van een eigen tuin geeft; entree; ruime hal met meterkast; toilet met fonteintje; badkamer met wastafelmeubel en douchehoek; 2 slaapkamers; woonkamer met balkon aan de voorzijde van de woning; open keuken voorzien van diverse inbouwapparatuur o.a. 5-pits kookplaat (gas op glas), afzuigkap, combimagnetron, vaatwasser, koelkast en aparte vriezer; inpandige berging met wasmachine- en drogeraansluiting, mechanische ventilatie unit, warmte terugwininstallatie en cv-opstelling.
LOCATIE:
Waarom is het zo fijn wonen in de jonge moderne wijk “de Entree”? Je woont op een steenworp van het centrum van Haarlem. De eeuwenoude straatjes met exclusieve boetiekjes en gezellige cafés zijn nog geen 10 minuten fietsafstand verwijderd.
Vanuit je huis loop je binnen enkele minuten naar de bushalte langs de snelweg A9 en nieuwe busstation (OV knooppunt) op de Schipholweg welke in 2024 in gebruik wordt genomen.
Geweldige mogelijkheden voor relaxen en fanatiek buitensporten, hardlopen, fietsen… een prachtige plek dus om te wonen!
BIJZONDERHEDEN:
- Bouwjaar 2013;
- Woonoppervlakte ca. 83 m2;
- Energielabel A;
- Zonnig terras én balkon;
- Privé parkeerplek in de garage;
- 2 slaapkamers;
- C.V.-ketel: 2013;
- Slechts 5 jaar bewoond;
- Service kosten gezamenlijk voor de woning en de parkeerplaats: € 182,- p/m. (incl. voorschot water € 20,-, opstalverzekering, groot onderhoud, schoonmaak etc.);
- Oplevering in overleg.









































