Omschrijving
Wonen in de Jordaan met karakter en comfort!
Nieuwe Leliestraat 133-2, vaste prijs €570.000 k.k.
----------
Eglish translation below
---------
Een charmant en karaktervol appartement van 60m2 in hartje Jordaan!
Dit ruime 2-kamerappartement op eigen grond (dus zonder erfpacht!) met heel veel licht, een erker, balkon en open keuken biedt een heerlijke combinatie van authentieke details en comfort. Gelegen op de tweede verdieping van een klassiek pand midden in een rustige straat in de Jordaan woon je hier letterlijk tussen de grachten, galeries, koffietentjes en gezelligheid.
INDELING
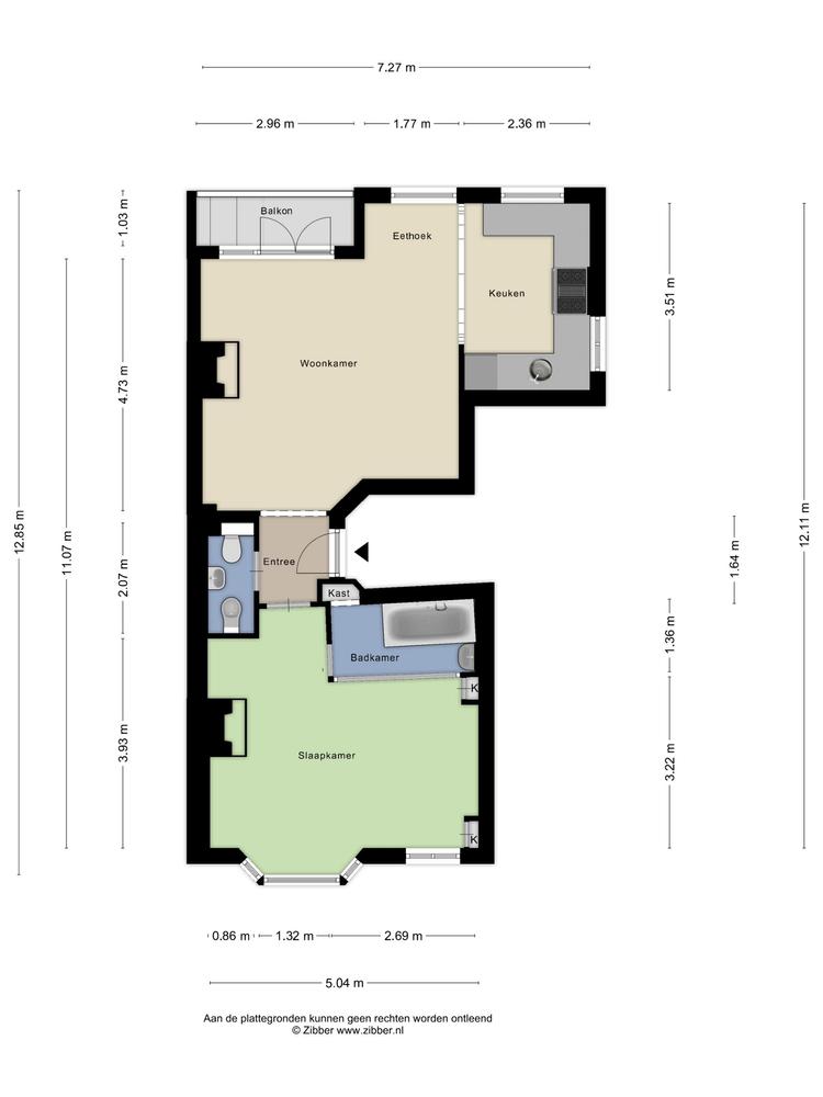
Via de gemeenschappelijke entree kom je op de tweede verdieping na de voordeur open te doen binnen in de woonkamer, met een deur naar links richting de slaapkamer. De woonkamer is opvallend ruim en licht dankzij grote raampartijen en de fijne indeling met een aparte eethoek. Aangrenzend vind je het balkon en de open keuken. Het balkon ligt op het zuidoosten waardoor het perfect ligt voor een ochtendkoffie in de zon.
De open keuken is praktisch en stijlvol met witte kasten, een royaal gasfornuis met oven en voldoende werkruimte. De combinatie van houten vloer en verhoogd tegelgedeelte geeft de ruimte een speels en huiselijk karakter.
De slaapkamer is voorzien van een brede erker en is erg ruim. Er is genoeg ruimte om een 2e slaapkamer of werkkamer te creëren. De slaapkamer heeft uitzicht op de rustige straat, voorzien van vaste kasten én zelfs een moderne gashaard. Ook ideaal als werk- of studeerruimte.
De badkamer is functioneel, uitgerust met een ligbad en wastafel. Het toilet is apart en grens aan de woonkamer.
OMGEVING / BEREIKBAARHEID
De Nieuwe Leliestraat ligt midden in de Jordaan, één van de meest geliefde buurten van Amsterdam. Deze straat is relatief rustig voor Jordaanse begrippen. Denk aan zaterdagse markten op de Noordermarkt, borrels langs de Brouwersgracht of een wandeling in het Westerpark. Alles is binnen handbereik: supermarkten, speciaalzaken, openbaar vervoer én gezellige kroegen en restaurants.
BIJZONDERHEDEN
ENGLISH TRANSLATION:
Living in the Jordaan with Character and Comfort!
Nieuwe Leliestraat 133-2 | Fixed price: €570,000 buyer’s costs
A charming and characterful apartment of 60m2 in the heart of the Jordaan.
This spacious one-bedroom apartment (with potential for a second) is situated on freehold land (no leasehold!) and offers an abundance of natural light, a bay window, a balcony, and an open-plan kitchen. Located on the second floor of a classic 19th-century building on a peaceful street in the middle of the Jordaan, you’ll be surrounded by canals, galleries, cafés, and everything that makes this neighbourhood so beloved.
LAYOUT
Entering through the shared staircase, you’ll arrive on the second floor and step directly into the bright and spacious living room, with a door to the left leading to the bedroom. Thanks to large windows and a smart layout, the space feels airy and welcoming. There’s a cozy dining area and access to the southeast-facing balcony — ideal for enjoying your morning coffee in the sun.
The open kitchen is both practical and stylish, fitted with sleek white cabinetry, a generous gas stove with oven, and plenty of counter space. The combination of wooden floors and a raised tiled section gives the room a playful yet homely vibe.
The large bedroom features a beautiful bay window overlooking the quiet street, built-in wardrobes, and even a modern gas fireplace. There’s also enough space to create a second bedroom or a dedicated office or study area.
The bathroom is simple but functional, equipped with a bathtub and sink. The toilet is separate and located just off the living area.
LOCATION & ACCESSIBILITY
Nieuwe Leliestraat is located in the heart of the Jordaan, one of Amsterdam’s most desirable neighbourhoods. Despite the central location, the street itself is relatively quiet by Jordaan standards. Picture weekend markets at Noordermarkt, drinks along the Brouwersgracht, or an afternoon stroll in nearby Westerpark. Everything is within walking distance: supermarkets, specialty shops, public transport, and a great selection of cafés, bars, and restaurants.
KEY FEATHURES
Nieuwe Leliestraat 133-2, vaste prijs €570.000 k.k.
----------
Eglish translation below
---------
Een charmant en karaktervol appartement van 60m2 in hartje Jordaan!
Dit ruime 2-kamerappartement op eigen grond (dus zonder erfpacht!) met heel veel licht, een erker, balkon en open keuken biedt een heerlijke combinatie van authentieke details en comfort. Gelegen op de tweede verdieping van een klassiek pand midden in een rustige straat in de Jordaan woon je hier letterlijk tussen de grachten, galeries, koffietentjes en gezelligheid.
INDELING
Via de gemeenschappelijke entree kom je op de tweede verdieping na de voordeur open te doen binnen in de woonkamer, met een deur naar links richting de slaapkamer. De woonkamer is opvallend ruim en licht dankzij grote raampartijen en de fijne indeling met een aparte eethoek. Aangrenzend vind je het balkon en de open keuken. Het balkon ligt op het zuidoosten waardoor het perfect ligt voor een ochtendkoffie in de zon.
De open keuken is praktisch en stijlvol met witte kasten, een royaal gasfornuis met oven en voldoende werkruimte. De combinatie van houten vloer en verhoogd tegelgedeelte geeft de ruimte een speels en huiselijk karakter.
De slaapkamer is voorzien van een brede erker en is erg ruim. Er is genoeg ruimte om een 2e slaapkamer of werkkamer te creëren. De slaapkamer heeft uitzicht op de rustige straat, voorzien van vaste kasten én zelfs een moderne gashaard. Ook ideaal als werk- of studeerruimte.
De badkamer is functioneel, uitgerust met een ligbad en wastafel. Het toilet is apart en grens aan de woonkamer.
OMGEVING / BEREIKBAARHEID
De Nieuwe Leliestraat ligt midden in de Jordaan, één van de meest geliefde buurten van Amsterdam. Deze straat is relatief rustig voor Jordaanse begrippen. Denk aan zaterdagse markten op de Noordermarkt, borrels langs de Brouwersgracht of een wandeling in het Westerpark. Alles is binnen handbereik: supermarkten, speciaalzaken, openbaar vervoer én gezellige kroegen en restaurants.
BIJZONDERHEDEN
- Vaste prijs: €570.000 kosten koper
- Oppervlakte: 60m2
- Eigen grond
- Energielabel : C
- Gelegen op de tweede verdieping
- Bouwjaar: 1881
- Glaswerk keuken dubbelglas, de rest is enkel glas
- Balkon aan de achterzijde
- Sfeervolle gashaard in de slaapkamer
- Badkamer met ligbad
- Actieve VvE
- VVE bijdrage: €150,-
- Verwarming via airconditioning
ENGLISH TRANSLATION:
Living in the Jordaan with Character and Comfort!
Nieuwe Leliestraat 133-2 | Fixed price: €570,000 buyer’s costs
A charming and characterful apartment of 60m2 in the heart of the Jordaan.
This spacious one-bedroom apartment (with potential for a second) is situated on freehold land (no leasehold!) and offers an abundance of natural light, a bay window, a balcony, and an open-plan kitchen. Located on the second floor of a classic 19th-century building on a peaceful street in the middle of the Jordaan, you’ll be surrounded by canals, galleries, cafés, and everything that makes this neighbourhood so beloved.
LAYOUT
Entering through the shared staircase, you’ll arrive on the second floor and step directly into the bright and spacious living room, with a door to the left leading to the bedroom. Thanks to large windows and a smart layout, the space feels airy and welcoming. There’s a cozy dining area and access to the southeast-facing balcony — ideal for enjoying your morning coffee in the sun.
The open kitchen is both practical and stylish, fitted with sleek white cabinetry, a generous gas stove with oven, and plenty of counter space. The combination of wooden floors and a raised tiled section gives the room a playful yet homely vibe.
The large bedroom features a beautiful bay window overlooking the quiet street, built-in wardrobes, and even a modern gas fireplace. There’s also enough space to create a second bedroom or a dedicated office or study area.
The bathroom is simple but functional, equipped with a bathtub and sink. The toilet is separate and located just off the living area.
LOCATION & ACCESSIBILITY
Nieuwe Leliestraat is located in the heart of the Jordaan, one of Amsterdam’s most desirable neighbourhoods. Despite the central location, the street itself is relatively quiet by Jordaan standards. Picture weekend markets at Noordermarkt, drinks along the Brouwersgracht, or an afternoon stroll in nearby Westerpark. Everything is within walking distance: supermarkets, specialty shops, public transport, and a great selection of cafés, bars, and restaurants.
KEY FEATHURES
- Fixed price: €570,000 buyer’s costs
- Living area: 60 m²
- Freehold property (no leasehold)
- Energy label: C
- Located on the second floor
- Built in 1881
- Double glazing in the kitchen, single glazing in the rest of the apartment
- Southeast-facing balcony at the rear
- Cozy gas fireplace in the bedroom
- Bathroom with bathtub
- Active and professionally managed HOA (VvE)
- HOA contribution: €150 per month
- Heating via air conditioning system






























